民生健康网:实用的健康养生网站
2023-07-05 16:48:34
互联网
之前和大家讲解了很多自建的30万左右的农村别墅实例,很多网友说建不起来,一大部分是说买宅基地就要十几万。我想说的是,绝大多数选择在农村建房的都是有地,只是要批,不需要买的。
今天我重新整理了12套30万左右建好主体的农村别墅,当然有的也只能称之为自建小洋房。大家一起来看看,哪一套最喜欢,都值不值?
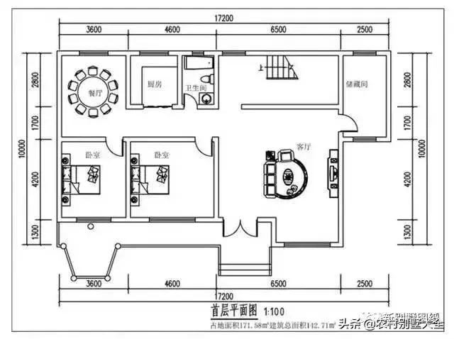
一套:28万,建筑面积342㎡,位置:河北
河北建房便宜是公认的。这套28万主体建成,砖混结构,如果框架肯定要贵蛮多的。一楼文化石外立面,2楼真石漆配上线条装饰,非常漂亮。房周一圈花坛,更为房子增色不少。

3室、3厅、2卫、2储藏间、大露台。如果觉得房间少了,2楼棋牌室可以稍加改动做卧室,2楼储藏间大小做书房也蛮合适。一楼檐廊1.3米进深,再加上小凉亭。摆上小椅子也符合农村人日常休憩的实际习惯。户型精美却不浪费空间。


第二套 30万,建筑面积284㎡,位置:湖北
辛辛苦苦在外奔波了数年时间,终于积攒了30万人民币,回乡盖房子,可能这30万在别人眼里只是一小部分金钱而已,但是对咱们农村人来说,这笔钱可是很多了。新盖好的房子,只是粉刷了外墙与门窗就已经花了30万了,室内还没有进行装修,只能以后慢慢来了!
花光积蓄值不值?这套房子整体还是挺好的。不仅好看,户型也很好。

首层为了满足日常的生活需求,只设计了一间卧室,剩下的全都是功能用房,卫生间干湿分离洁污有序,从健康角度出发这一点做的是很好的。带堂屋也符合南方人的农村的需求,相比一楼留客厅,有堂屋才是最重要的。
楼梯下方可以做为储物房、工具房,也基本够用。只是宅基地有限,建不了车库了。我觉得如果对车库需求度高,一楼客厅可以改成车库,2楼本身有大客厅,楼梯上去平台还有一个娱乐活动区,在农村,一楼餐厅够大,堂屋够大,1楼再留一个大客厅反而显得有点多余。

2楼卧室去掉衣帽间,墙体内移,多出了一个大阳台。

第三套:造价30万,建筑面积281㎡,位置:温州
浙江温州的张先生去年花费30万在老家建了套欧式小别墅,每逢节假日就驾车带着妻女回村,享受几天怡然自得的慢生活,再也不用假期出门看人头,还能多多陪伴老父母。
坡顶式设计,北方见这套农村别墅也是非常适合。
欧式风格,造型丰富的坡屋顶与弧形采光窗打造浪漫的欧式风情,精致简约的欧式围栏与石膏雕花也另有韵味。2楼主卧拐角飘窗设计也非常好。
整体采用双段式配色,下部铺设棕黄色瓷砖加以白色点缀,上部铺设米色瓷砖更显稳重大气,整体配色和谐自然又不落俗套。

1楼设客厅、厨房、餐厅、卧室、卫生间,基本满足了1楼的功能性特征。虽然没有单独做堂屋,但是留了神龛位,客厅跟堂屋一体,平时沙发外移,客厅面积更大,堂屋办酒席等的时候,沙发右移,大大的堂屋就出来了。

2楼设计客厅、棋牌室、卫生间、两间卧室。
将卧室都设计在阳光,增加卧室的日照率;2楼设计棋牌室,日常生活之外也能娱乐,充满乐趣;3间卧室基本能满足2-3代人居住。

第四套:30万,中式,位置:四川
现代简约中式风格,外部空间布局开放式三合院。别墅外观中与西的结合如此和谐,中式的优雅与西式的简约取长补短,不仅成就了另一种审美的愉悦,也贴近生活,舒适自然

有堂屋、餐厅、厨房、3间卧室,2间带有独卫,满足了1层功能性的特征。

2层设有起居室、厨房、餐厅、3间卧室,与1层格局相差不大。这非常适合兄弟合建,每层都是套间设计。

这样类似合院的坡顶房子,屋顶是最考验设计师、施工队技术的。

砖混结构,做了马牙槎,其实在四川,做框架结构抗震强度层够好。不过框架的话没有40多万,主体肯定搞不起来。

第五套:造价40万,建筑面积298平方米。位置:广东
现在人们农村建乡村别墅是真的舍得花钱,随随便便就50万、60万的主体,广东、福建农村有钱人多,而且也走在设计前沿,建房都会找人设计一下。
这套40万主体2层半的农村别墅,丝毫不输给60万造价的。不说其他,单看外立面装修我就已经爱上它了,你呢?

11.8×9.8米的宅基地真的算是小的了,那就多盖半层呗,不仅实用也美观。一楼为生活活动区,但是有一个老人房。
不过卫生间都门对门,建议左侧卫生间可以改成客厅方向开推拉门会更佳。

二三层是别墅主要的居住空间,一共设计了四间卧室两间起居室,结构工整无杂乱,空间布局划分合理,卫生间干湿分离技术让生活更加实用,要是在农村有一栋这样的房子出来,那可真算得上不错了!


第六套:造价30万,3层半,位置:广西
都说农村的不能叫别墅,只能叫自建房,那么看完这个你就会觉得,那些确实是农村别墅,这才是标准的农村自建房。
这是一农民工夫妻建给父母的养老房,虽然不是那么美轮美奂,但是实用,符合农村人所有的居住习惯。
屋顶半平半坡,方便晾晒,又有好看的屋顶造型,仿石艺护栏其实屋顶也很美。只是因为宅基地太小,只有6.6开间,总进深14米。要建出实用的房子,那么2、3楼外观上就比较难做好了。

房主没有找设计师,自己画的草图,跟施工师傅说明就开建。二层做骑楼,飘檐一米多,既是一楼的屋檐,又让2楼空间大了很多。不然这么小的开间、进深也才12.5米,2三楼这么规划都弄不好。
木质大门,虽然不洋气,但也实用,质量更是杠杠的。房子旁边挖了块地,种点瓜果蔬菜,自己种的菜吃了也放心。

再来看户型,厕所放在厨房后面,,一楼留下一个大卧室做老人房,路边卧室放后面,更安静,适合老人休息。
开间6.4,进深近6米的堂屋符合南方人的居住需求,开间够大,摩托车等可以直接停进去。

2、3楼都都是单独套间设计,一个大主卧,两个小一些次卧,因为骑楼式设计,次卧也是3.2×4.4米也不小,不然的话就只有3.2×2.8米的话就太小了。
想法很简单,自己不出去做工了,救助二楼,三楼留给儿子,那样儿子几年后大学毕业在城里买房结婚了,回到农村老家,一家人生活也方便。

房屋侧面和后面都没有装饰,只抹了灰,对于农村自建房,而不是定位农村别墅,外墙全部弄瓷砖这些才是浪费钱。在后门开了一道门,方便父母串邻居,在农村就是“远亲不如近邻”。
平时就老父母在家,防盗网的钱可不能省,一句话该花得花,能省的地方就省。

第七套:造价35万,建筑面积393㎡,位置:湖南
别墅有三层,砖混结构建造,开间13米,进深10.26米,建筑面积393.26平方米。落地窗、大露台,红色外墙,搭配经典。入户门厅左侧是一个弧形采光窗,唯美大气,日照率充足。

此户型设计舒适,一层阳面是客厅、堂屋、老人房,老人房旁边是卫生间,方便老人行动。东侧是厨房和餐厅。

二三层是较为宁静的区域,以卧室为主,二层有3卧室、1起居室、1卫生间;三层有2个卧室、1起居室和一个露台,共6个卧室,能住3~4代人,适合人口较多的家庭建造。
房间空间非常大,可以考虑稍作修改,二楼卧室增加独立卫生间。


第八套:造价35万,框架结构,湖南
两口子都是80后,从有了孩子开始就一直有盖房的打算,但是各种原因一直没盖成,前两年看着钢材价格蹭蹭的涨,两口子也等不及了,说盖就盖!也因为钢价上涨,房子造价高了不少。

夫妻俩找出曾经在网上收藏的户型,选了一套最喜欢也是最合适的。先看下布局,农村就讲究堂屋,所以进门设计了堂屋;厨房也是单设带柴火灶,省的屋里容易脏。3.6×5米的餐厅,摆个圆餐桌坐十几个人都不成问题。



第九套:造价33万,建筑面积365㎡
欧式风格的农村平顶别墅,这几天推荐了很多平顶别墅,看大家留言才发现,原来南方那么多人最爱的还是平顶。简单的文化石外墙装修,配上玻璃窗就是绝美。

1楼不用多说,一样是老人房、客厅、堂屋一体。11.6×10.8米的宅基地也是现在南方农村最普遍的存在。2楼、3楼棋牌室、书房、娱乐房等空间都够大,可以根据实际需求决定用途。



第十套:造价38万,美式,位置:南方某省
单套造价38万,但是这其实是美式双拼,两兄弟老父母还在,但是自己的孩子也长大了,住一起肯定不方便,所以选择了建在一块,搞双拼,但是又都是单独独栋,不共用墙体。这是一个非常值得借鉴的兄弟一起建房的案例。

美式田园风,配色选不好的话真不符合中国人的审美,但是配色选的好,就会是中国人的最爱。

一楼客厅、堂屋、大餐厅,老人房,两兄弟镜像户型,父母愿意跟谁住都行。2、3楼空间可以装修时再灵活设计。这样两兄弟一样的外观,但是可以根据自己的喜好布置内部空间,同样的别墅,不一样的居住体验。



房子还有一个大的亮点,那就是农村别墅怎么做防盗网。直接做外面肯定影响美观,不妨学学这个,房屋直接跟窗户一起做造型设计,即防盗又美观。

第十一套:造价:30万毛坯(不含外立面),建筑面积320㎡,位置:南方某省
毛坯30万,外立面大家估计一下要多少,门窗要多少,建起来40万够吗?外观我就不啰嗦了,大家自己看,只说一个字“霸气”!


客厅和餐厅想通,空间阔度大,视野开阔。一层有两个储藏室,楼梯下面的储藏室存放农具,北侧的储藏室存放蔬菜、粮食等;如果觉得4个卧室少了,可以对2、3层空间布局略作调整,可以多出2个卧室。



大家说说为什么第6套这么难看却是现在农村盖房的首选?如果是你,你最想建哪一套?
所有施工图纸展示CAD格式
上篇: cad制图初学入门
下篇: 献血对身体有什么好处和坏处